Neste momento, não existem promoções
Neste momento, não existem produtos disponíveis.
Pavimento vinílico SPC | SOLID CLICK XL
Pavimento Vinil SPC | SOLID CLICK XL
Pavimento Vinílico SPC | SOLID CLICK XL
Pavimento Vinílico SPC | SOLID CLICK XL
Pavimento Vinílico SPC | SOLID CLICK XL
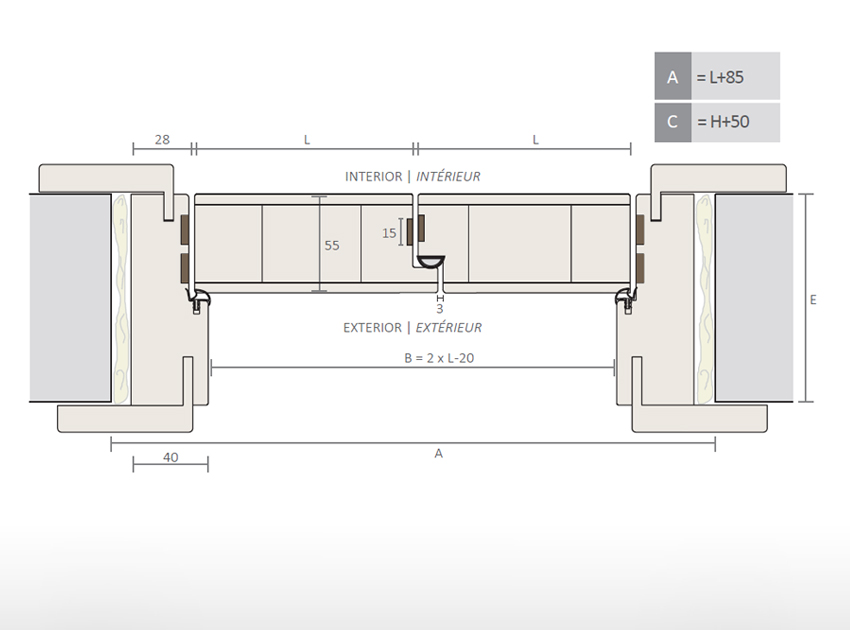
Perfis para fachadas para revestimento exterior.
Perfis em alumínio para aplicação de painéis decorativos de parede.
Molduras decorativas para aplicação na parede ou mobiliário
Mar
A Gosimat foi novamente distinguida com dois dos mais relevantes reconhecimentos do tecido...
Mar
Um reconhecimento que evidencia a solidez financeira, a capacidade de inovação e o desempenho...